Muli-Nova DDP
Produktfordele
- Testet i henhold til DIN EN 12050-1
- Frit valgbare indløb
- Trykhøjder op til 30 m mulige
- 2 beholderstørrelser kan vælges (430/550 l)
- Let at vedligeholde tilbagestrømsventil (patenteret)
Produktinformation
- Anvendelsesområder
- Flerfamiliehuse, Kontorbygninger, Industribygninger
- Bag fedtudskillere op til NS22,5 – ifm. luftbobleinjektion
- Saltbelastet skyllevand fra ionbytterblødgøringsanlæg
- Klorholdigt spildevand fra indendørs svømmebassiner (0,3 – 1,0 mg/l klorindhold)
- Testet i henhold til DIN EN 12050-1
- Godkendt medietemperatur op til 40 °C (kortvarigt op til maks. 65 °C)
- Styring er ikke inkluderet i leveringsomfanget og skal bestilles separat (se tilbehør)
- Niveaustyring
- Pneumatisk niveaustyring med 10 m styreledning
- Valgfrit: tryktransducer
- Valgfrit: luftbobleinjektion (tilbehør) til måling m. pilotrør
- Tank fremstillet af polyethylen
- Bundudløb/tilslutning til manuel membranpumpe R 1½"
- Inspektionsåbning for nem vedligeholdelse, Ø250mm
- Fastgørelsessæt til opdriftssikker forankring
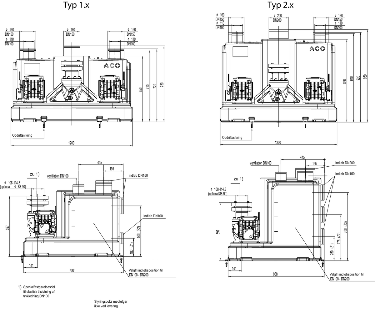
- DDP 1.x:
- Horisontale indløbsstudse: 1 x DN100, 1 x DN150
- Vertikale indløbsstudse: 1 x DN100, 3 x DN150, 1 x DN100 (ventilationsrør)
- DDP 2.x:
- Horisontale indløbsstudse: 3 x DN150
- Vertikale indløbsstudse: 1 x DN100, 2 x DN150, 1 x DN200, 1 x DN100 (ventilationsrør)
Derudover frit valgbare studse via hulsave + tætning
- Tilslutning til trykledning
- Patenteret klaptilbagestrømsventil med løfteskrue
- Aftapningsventil for nemmere tømning
- Speciel monteringsadapter DN 80 til elastisk tilslutning af trykledning med udvendig rørdiameter 108 – 114,3 mm (valgfrit: 88 – 93 mm)
- Tilslutningsflange til afspærringsventil DN 802 pumpeenheder
- 2 pumper
- Trefaset motor: 400 V, 50 Hz
- Beskyttelsesklasse IP 68
- Tilstopningsfrit fritløbsløbehjul
- 10 m tilslutningskabel
| Type | Motoreffekt | Nøgletal | Anvendelig volume | Total vol. | Vægt | Varenr. | Downloads | ||||||
| Strøm- optag | Spænding | Omdrejnings- tal | |||||||||||
| P1 | P2 | [A] | [V] | [r/min] | Indløbs- højde Z1 | Indløbs- højde Z2 | Indløbs- højde Z3 | Total indløb | [l] | [kg] | |||
| [kW] | [kW] | [l] | [l] | [l] | [l] | ||||||||
| Muli-Nova DDP 1.1 | 1.7 | 1.5 | 3.7 | 400 | 1450 | 100 | 275 | 345 | 430 | 105 | 3016808 |
| |
| Muli-Nova DDP 1.2 | 3.5 | 3 | 6.6 | 400 | 2900 | 100 | 275 | 345 | 430 | 115 | 3016809 |
| |
| Muli-Nova DDP 1.3 | 6.3 | 5.5 | 11.2 | 400 | 2900 | 100 | 275 | 345 | 430 | 130 | 3016810 |
| |
| Muli-Nova DDP 2.1 | 1.7 | 1.5 | 3.7 | 400 | 1450 | 120 | 260 | 400 | 455 | 550 | 110 | 3016811 |
|
| Muli-Nova DDP 2.2 | 3.5 | 3 | 6.6 | 400 | 2900 | 120 | 260 | 400 | 455 | 550 | 120 | 3016812 |
|
| Muli-Nova DDP 2.3 | 6.3 | 5.5 | 11.2 | 400 | 2900 | 120 | 260 | 400 | 455 | 550 | 135 | 3016813 |
|
| Type | Trykhøjde | Pumpekapacitet Q ved samlet trykhøjde H | Medietemperatur [°C] | ||||||||||||
| 2 m | 4 m | 6 m | 8 m | 10 m | 12 m | 14 m | 16 m | 18 m | 20 m | 22 m | 24 m | Normal | Maximum | ||
| [m] | [l/s] | [l/s] | [l/s] | [l/s] | [l/s] | [l/s] | [l/s] | [l/s] | [l/s] | [l/s] | [l/s] | [l/s] | [°C] | [°C] | |
| Muli-Nova DDP 1.1 | 2 – 10 | 14.4 | 12.1 | 9.2 | 5.3 | 0.4 | 40 | 60 | |||||||
| Muli-Nova DDP 1.2 | 2 – 24 | 19.4 | 18.4 | 16.7 | 15.0 | 13.2 | 11.7 | 10.2 | 8.6 | 6.8 | 5.0 | 3.1 | 0.6 | 40 | 60 |
| Muli-Nova DDP 1.3 | 2 – 31 | 22.3 | 22.1 | 21.9 | 21.0 | 19.9 | 19.0 | 17.8 | 16.4 | 15.2 | 13.9 | 12.2 | 10.8 | 40 | 60 |
| Muli-Nova DDP 2.1 | 2 – 10 | 14.4 | 12.1 | 9.2 | 5.3 | 0.4 | 40 | 60 | |||||||
| Muli-Nova DDP 2.2 | 2 – 24 | 19.4 | 18.4 | 16.7 | 15.0 | 13.2 | 11.7 | 10.2 | 8.6 | 6.8 | 5.0 | 3.1 | 0.6 | 40 | 60 |
| Muli-Nova DDP 2.3 | 2 – 31 | 22.3 | 22.1 | 21.9 | 21.0 | 19.9 | 19.0 | 17.8 | 16.4 | 15.2 | 13.9 | 12.2 | 10.8 | 40 | 60 |
| Type | Motoreffekt | Nøgletal | Anvendelig volume | Total vol. | Vægt | Varenr. | Downloads | ||||||
| Strøm- optag | Spænding | Omdrejnings- tal | |||||||||||
| P1 | P2 | [A] | [V] | [r/min] | Indløbs- højde Z1 | Indløbs- højde Z2 | Indløbs- højde Z3 | Total indløb | [l] | [kg] | |||
| [kW] | [kW] | [l] | [l] | [l] | [l] | ||||||||
| Muli-Nova DDP 1.1 | 1.7 | 1.5 | 3.7 | 400 | 1450 | 100 | 275 | 345 | 430 | 105 | 3016808 |
| |
| Muli-Nova DDP 1.2 | 3.5 | 3 | 6.6 | 400 | 2900 | 100 | 275 | 345 | 430 | 115 | 3016809 |
| |
| Muli-Nova DDP 1.3 | 6.3 | 5.5 | 11.2 | 400 | 2900 | 100 | 275 | 345 | 430 | 130 | 3016810 |
| |
| Muli-Nova DDP 2.1 | 1.7 | 1.5 | 3.7 | 400 | 1450 | 120 | 260 | 400 | 455 | 550 | 110 | 3016811 |
|
| Muli-Nova DDP 2.2 | 3.5 | 3 | 6.6 | 400 | 2900 | 120 | 260 | 400 | 455 | 550 | 120 | 3016812 |
|
| Muli-Nova DDP 2.3 | 6.3 | 5.5 | 11.2 | 400 | 2900 | 120 | 260 | 400 | 455 | 550 | 135 | 3016813 |
|
| Type | Trykhøjde | Pumpekapacitet Q ved samlet trykhøjde H | Medietemperatur [°C] | ||||||||||||
| 2 m | 4 m | 6 m | 8 m | 10 m | 12 m | 14 m | 16 m | 18 m | 20 m | 22 m | 24 m | Normal | Maximum | ||
| [m] | [l/s] | [l/s] | [l/s] | [l/s] | [l/s] | [l/s] | [l/s] | [l/s] | [l/s] | [l/s] | [l/s] | [l/s] | [°C] | [°C] | |
| Muli-Nova DDP 1.1 | 2 – 10 | 14.4 | 12.1 | 9.2 | 5.3 | 0.4 | 40 | 60 | |||||||
| Muli-Nova DDP 1.2 | 2 – 24 | 19.4 | 18.4 | 16.7 | 15.0 | 13.2 | 11.7 | 10.2 | 8.6 | 6.8 | 5.0 | 3.1 | 0.6 | 40 | 60 |
| Muli-Nova DDP 1.3 | 2 – 31 | 22.3 | 22.1 | 21.9 | 21.0 | 19.9 | 19.0 | 17.8 | 16.4 | 15.2 | 13.9 | 12.2 | 10.8 | 40 | 60 |
| Muli-Nova DDP 2.1 | 2 – 10 | 14.4 | 12.1 | 9.2 | 5.3 | 0.4 | 40 | 60 | |||||||
| Muli-Nova DDP 2.2 | 2 – 24 | 19.4 | 18.4 | 16.7 | 15.0 | 13.2 | 11.7 | 10.2 | 8.6 | 6.8 | 5.0 | 3.1 | 0.6 | 40 | 60 |
| Muli-Nova DDP 2.3 | 2 – 31 | 22.3 | 22.1 | 21.9 | 21.0 | 19.9 | 19.0 | 17.8 | 16.4 | 15.2 | 13.9 | 12.2 | 10.8 | 40 | 60 |





