Muli-Pro DDP
Produktfordele
- Stort anvendeligt tankvolumen
- Forskellige indløbshøjder
- Høj driftssikkerhed takket være pilotrør og luftbobleinjektion
- Egnet til fedtholdigt spildevand
- Kan forlænges i parallelle længder
- Energibesparende kanalhjul
- Designet til at kunne passere smalle døråbninger: 780 mm
Produktinformation
- Anvendelsesområder
- Lejlighedsbygninger
- Små erhvervsenheder med højt spildevandsniveau
- Efter fedtudskillere op til NS 22,5
- Hvor der er lange trykledninger med stor niveauforskel
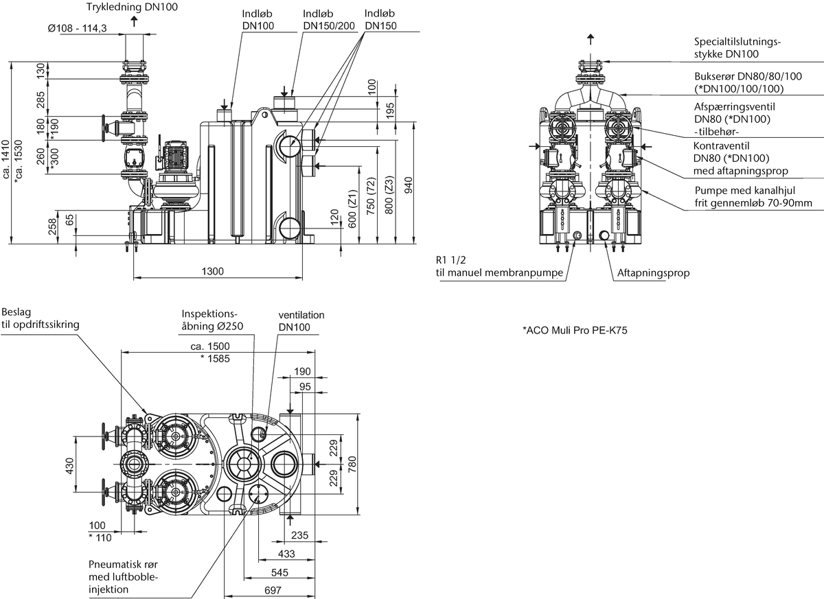
- Tilslutning til trykledning
- Med 2 specialtilbageløbsstop DN80 (DN100 ved Muli Pro-PE K‑75 duo) med udluftningsanordning
- Med Y-rør
- Med specialmonteringsadapter DN100 til tilslutning af trykledning med udvendig rør Ø108–114,3mm
- Tank fremstillet af polyethylen
- Med aftapningsprop
- Med tilslutning for manuel membranpumpe 1½"
- Med fastgørelsessæt for driftsikker fastgørelse
- Med 4 horisontale indløbsstudse DN 150
- Med 1 vertikal indløbsstuds DN 150/200
- Med 1 serviceåbning, fri åbning: 250 mm
- Med ventilationsstudse DN 100 til tilslutning af plastrør
- 2 pumpeenheder
- Trefaset motor 400 V, 50 Hz
- Beskyttelsesgrad IP 68
- Med aksel og roterende mekanisk tætning
- Med kanalhjul
- Pneumatisk niveaustyring med pilotrør og pneumatisk styreledning
- Minikompressor til luftbobleinjektion
- Styring
- Beskyttelsesgrad IP 54
- Med 1,5 m kabel og EEC-stik
- Med potentialfri samlet fejl- og driftsmelding
- Inkl. 10 m kabel mellem løftestation og styreboks
| Type | Motoreffekt | Nøgletal | Granu- lering | Anvendelig volume | Total vol. | Vægt | Varenr. | Downloads | ||||||
| Strøm- optag | Spænding | Omdrejnings- tal | ||||||||||||
| P1 | P2 | [A] | [V] | [r/min] | [mm] | Indløbs- højde Z1 | Indløbs- højde Z2 | Indløbs- højde Z3 | Total indløb | [l] | [kg] | |||
| [kW] | [kW] | [l] | [l] | [l] | [l] | |||||||||
| Muli-Pro DDP 1.1 | 2.01 | 1.5 | 3.6 | 400 | 1450 | 70 | 240 | 305 | 330 | 330 | 520 | 303 | 0175.13.17 |
|
| Muli-Pro DDP 1.2 | 2.94 | 2.2 | 5.2 | 400 | 1450 | 70 | 240 | 305 | 330 | 330 | 520 | 314 | 0175.13.18 |
|
| Muli-Pro DDP 1.3 | 3.87 | 3 | 6.6 | 400 | 1450 | 70 | 240 | 305 | 330 | 330 | 520 | 346 | 0175.13.19 |
|
| Muli-Pro DDP 1.4 | 6.71 | 5.5 | 11.6 | 400 | 1450 | 70 | 240 | 305 | 330 | 330 | 520 | 401 | 0175.13.20 |
|
| Muli-Pro DDP 1.5 | 8.97 | 7.5 | 15.5 | 400 | 1450 | 100 | 240 | 305 | 330 | 330 | 520 | 410 | 0175.13.21 |
|
| Type | Trykhøjde | Pumpekapacitet Q ved samlet trykhøjde H | Medietemperatur [°C] | ||||||||
| 4 m | 6 m | 8 m | 10 m | 12 m | 14 m | 16 m | 18 m | Normal | Maximum | ||
| [m] | [l/s] | [l/s] | [l/s] | [l/s] | [l/s] | [l/s] | [l/s] | [l/s] | [°C] | [°C] | |
| Muli-Pro DDP 1.1 | 3 – 8 | 18.3 | 11.7 | 5.8 | 40 | 60 | |||||
| Muli-Pro DDP 1.2 | 3 – 10 | 24.2 | 18.5 | 12.5 | 5.3 | 40 | 60 | ||||
| Muli-Pro DDP 1.3 | 4 – 14 | 33.5 | 28.4 | 23.1 | 16.8 | 10.3 | 4.2 | 40 | 60 | ||
| Muli-Pro DDP 1.4 | 4 – 17 | 37.3 | 32.7 | 28.1 | 23.1 | 18.8 | 14.1 | 9.4 | 40 | 60 | |
| Muli-Pro DDP 1.5 | 6 – 18 | 51.8 | 46.2 | 39.2 | 31.7 | 23.2 | 14.2 | 6.8 | 40 | 60 | |
| Type | Motoreffekt | Nøgletal | Granu- lering | Anvendelig volume | Total vol. | Vægt | Varenr. | Downloads | ||||||
| Strøm- optag | Spænding | Omdrejnings- tal | ||||||||||||
| P1 | P2 | [A] | [V] | [r/min] | [mm] | Indløbs- højde Z1 | Indløbs- højde Z2 | Indløbs- højde Z3 | Total indløb | [l] | [kg] | |||
| [kW] | [kW] | [l] | [l] | [l] | [l] | |||||||||
| Muli-Pro DDP 1.1 | 2.01 | 1.5 | 3.6 | 400 | 1450 | 70 | 240 | 305 | 330 | 330 | 520 | 303 | 0175.13.17 |
|
| Muli-Pro DDP 1.2 | 2.94 | 2.2 | 5.2 | 400 | 1450 | 70 | 240 | 305 | 330 | 330 | 520 | 314 | 0175.13.18 |
|
| Muli-Pro DDP 1.3 | 3.87 | 3 | 6.6 | 400 | 1450 | 70 | 240 | 305 | 330 | 330 | 520 | 346 | 0175.13.19 |
|
| Muli-Pro DDP 1.4 | 6.71 | 5.5 | 11.6 | 400 | 1450 | 70 | 240 | 305 | 330 | 330 | 520 | 401 | 0175.13.20 |
|
| Muli-Pro DDP 1.5 | 8.97 | 7.5 | 15.5 | 400 | 1450 | 100 | 240 | 305 | 330 | 330 | 520 | 410 | 0175.13.21 |
|
| Type | Trykhøjde | Pumpekapacitet Q ved samlet trykhøjde H | Medietemperatur [°C] | ||||||||
| 4 m | 6 m | 8 m | 10 m | 12 m | 14 m | 16 m | 18 m | Normal | Maximum | ||
| [m] | [l/s] | [l/s] | [l/s] | [l/s] | [l/s] | [l/s] | [l/s] | [l/s] | [°C] | [°C] | |
| Muli-Pro DDP 1.1 | 3 – 8 | 18.3 | 11.7 | 5.8 | 40 | 60 | |||||
| Muli-Pro DDP 1.2 | 3 – 10 | 24.2 | 18.5 | 12.5 | 5.3 | 40 | 60 | ||||
| Muli-Pro DDP 1.3 | 4 – 14 | 33.5 | 28.4 | 23.1 | 16.8 | 10.3 | 4.2 | 40 | 60 | ||
| Muli-Pro DDP 1.4 | 4 – 17 | 37.3 | 32.7 | 28.1 | 23.1 | 18.8 | 14.1 | 9.4 | 40 | 60 | |
| Muli-Pro DDP 1.5 | 6 – 18 | 51.8 | 46.2 | 39.2 | 31.7 | 23.2 | 14.2 | 6.8 | 40 | 60 | |



