Muli-Flex - til installation i gulv
Produktfordele
- Testet iht. EN 12050-1
- Afhængigt af pumpens udformning kan anlægget anvendes til spildevand med eller uden fækalier
- Automatisk pumpekobling for værktøjsfri montering og afmontering
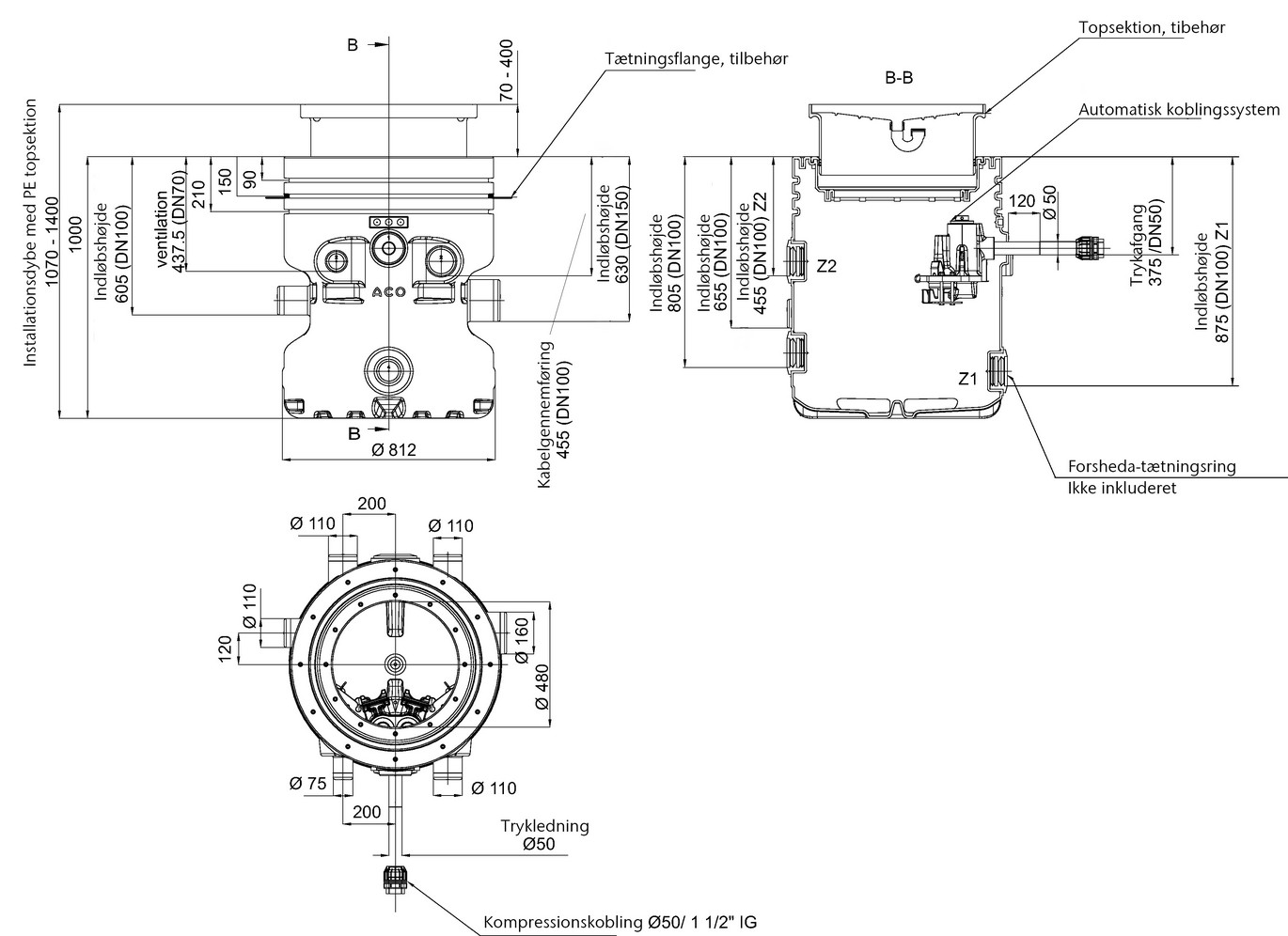
- Samlet tankvolumen: 380 liter
- Tætningskrave mod opstigende grundvand (tilvalg)
Produktinformation
- Anvendelse:
- Etageejendomme
- Kontorbygninger
- Industribygninger
- Omklædningsrum og sanitære installationer
- Parkeringskældre
- Teknikrum
- Med én eller to pumper
- Til installation i bundplade
- Tank fremstillet af polyethylen
- Stor inspektionsåbning for nem vedligeholdelse: Ø480 mm.
- Tankdimension (DxH): Ø800 x 1000 mm
- Pumpeophæng med dobbelt special kuglekontraventil, værktøjsfri montering/afmontering af pumpen via automatisk overfladevandkobling
- Tilslutning af indløbsrør (minimum driftsvolumen: 30 liter, maksimal driftsvolumen: 160 liter, indløbshøjder målt fra gulvoverkant til underkant af indløbsrør):
- 1 x indløb DN 100 Forsheda, indløbshøjde 875 mm, driftsvolumen = 30 l
- 1 x indløb DN 100 Forsheda, indløbshøjde 805 mm, driftsvolumen = 50 l
- 2 x indløb DN 100 studs, indløbshøjde 655 mm, driftsvolumen = 100 l
- 1 x indløb DN 150 studs, indløbshøjde 630 mm, driftsvolumen = 105 l
- 1 x indløb DN 100 studs, indløbshøjde 605 mm, driftsvolumen = 115 l
- 1 x indløb DN 100 Forsheda, indløbshøjde 455 mm, driftsvolumen = 170 l
- Trykledningstilslutning:
- Trykledningsudgang PE-HD: studs DN50 (Ø50 mm)
- Kompressionsfitting med adapter 1 ½" indvendigt gevind medfølger
- Ventilationstilslutning:
- Studs DN70 (ydre Ø 75 mm), egnet til tilslutning af plast- eller støbejernsrør
- Tilslutningshøjde: 437,5 mm (målt fra gulvoverkant til underkant af indløbsrør)
- Ekstra tilslutninger:
- Kabelgennemføring DN100 (ydre Ø 110 mm), 455 mm (målt fra gulvoverkant til underkant af indløbsrør)
- Samlet installationshøjde med opføringsrør: 1070 - 1400 mm





